컨텐츠로 건너뛰기
2in1
Atelier
메뉴와 위젯
Home
About
Project
Architecture
Interiors
Furniture
Products
Contact
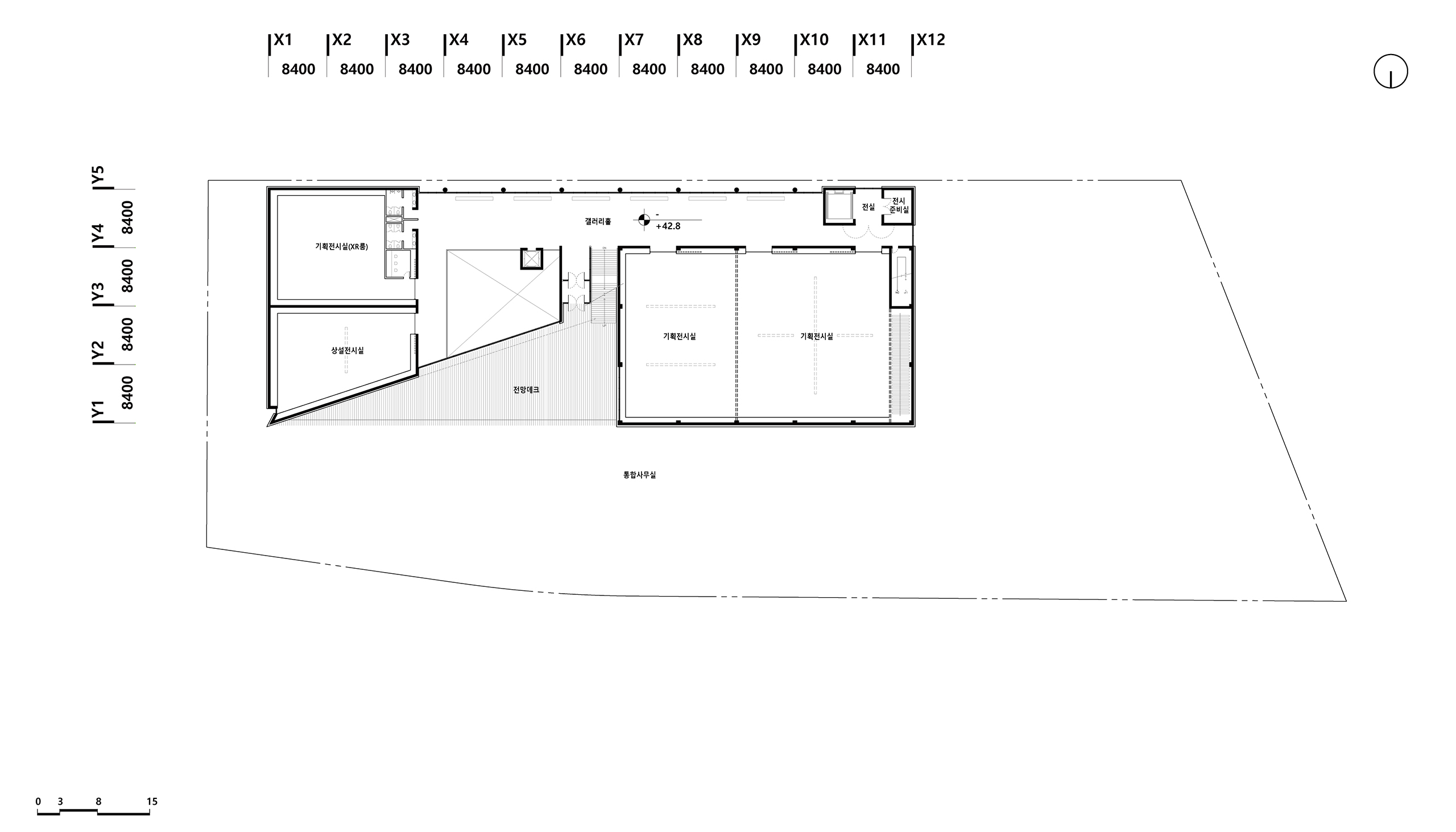
2022 Changwon Museum of Art